Perfect For:

Large block
Growing families
Knock-Down, Rebuild
Home theatre option
Big families
Home office option
Entertainers
Scullery included

Floor Plans

Mahogany 38

  • 4

  • 2.5

  • 2


Minimum Lot Width
14.15m

Subject to Council Conditions


OPTIONS

Measurement

Living Area
296.14 m²
Garage
33.06 m²
Alfresco
16.32 m²
Porch
3.03 m²
Overall Width
11.15 m
Overall Length
21.14 m
Total Area
348.55 m²
Floor Plan

Based on Classic facade and will adjust for alternatives.

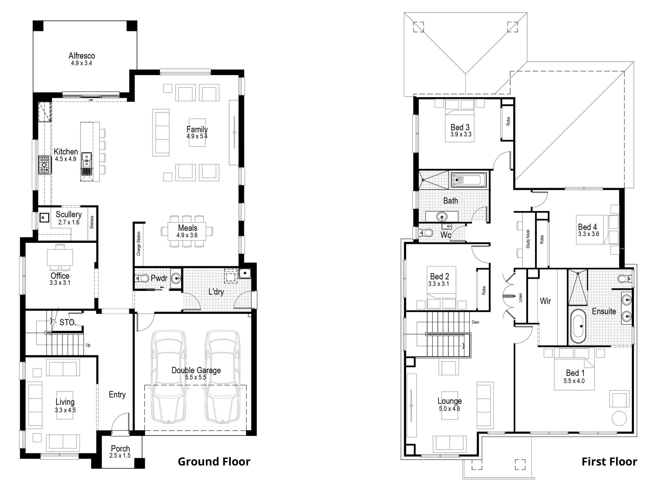
Mahogany 43

  • 4

  • 2.5

  • 2


Minimum Lot Width
14.05m

Subject to Council Conditions


OPTIONS

Measurement

Living Area
344.67 m²
Garage
33.06 m²
Alfresco
15.32 m²
Porch
3.03 m²
Overall Width
11.63 m
Overall Length
21.94 m
Total Area
396.08 m²
Floor Plan

Based on Classic facade and will adjust for alternatives.

Mahogany 48

  • 4

  • 2.5

  • 2


Minimum Lot Width
15.01m

Subject to Council Conditions


OPTIONS

Measurement

Living Area
389.38 m²
Garage
33.06 m²
Alfresco
20.51 m²
Porch
3.03 m²
Overall Width
12.59 m
Overall Length
22.3 m
Total Area
445.98 m²
Floor Plan

Based on Classic facade and will adjust for alternatives.

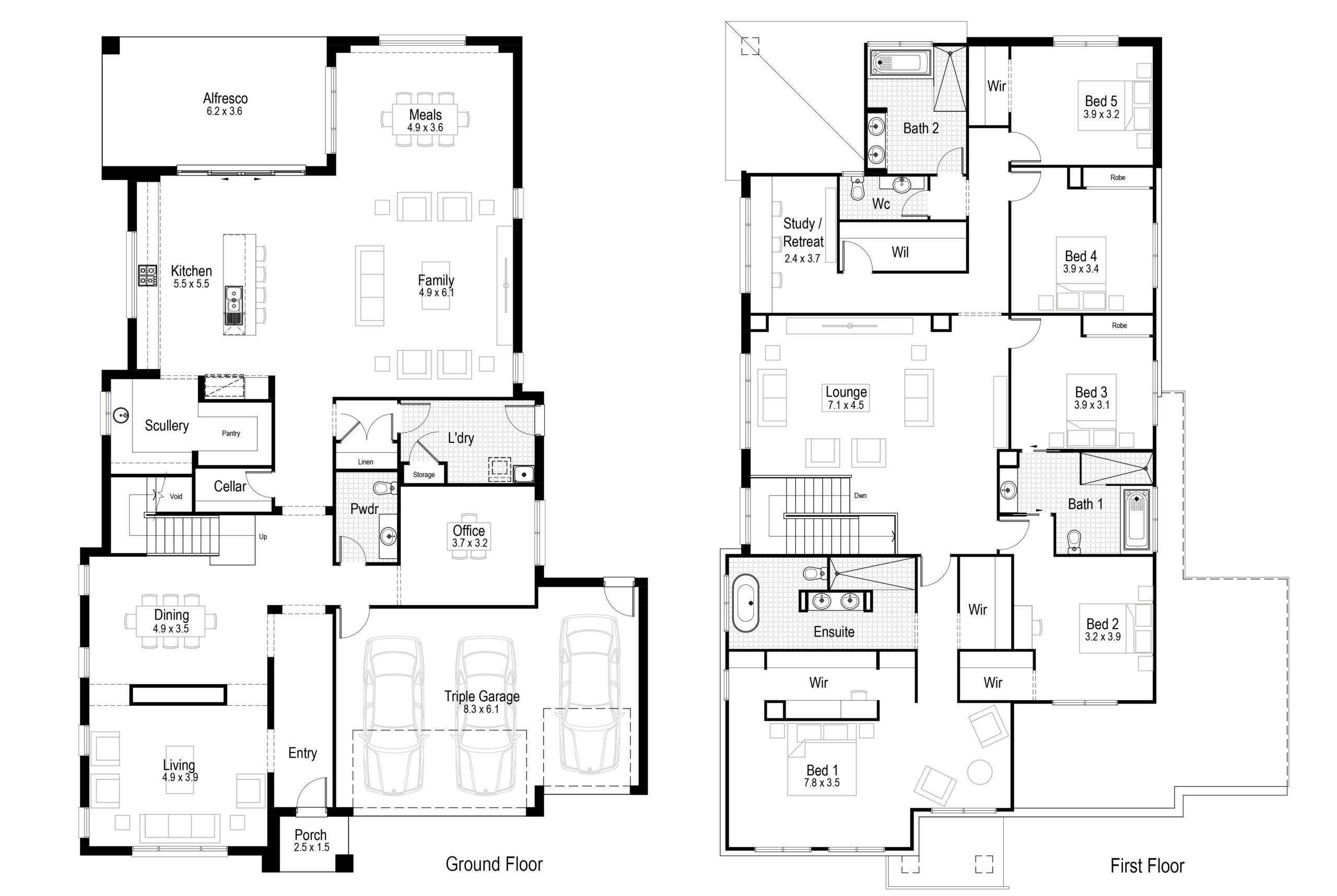
Mahogany 56

  • 5

  • 3.5

  • 3


Minimum Lot Width
18.13m

Subject to Council Conditions


OPTIONS

Measurement

Living Area
440.44 m²
Garage
50.4 m²
Alfresco
22.46 m²
Porch
3.03 m²
Overall Width
15.71 m
Overall Length
23.14 m
Total Area
51583 m²
Floor Plan

Based on Classic facade and will adjust for alternatives.

FACADES

INTERNAL PHOTOS

Virtual Tour

Irene Wallace
Irene Wallace Sales Excutive